Cho thuê tòa nhà văn phòng phường An Phú Quận 2. Vị trí trung tâm khu đô thị An Phú An Khánh quận 2, nhà có vị trí đắc địa liền kề đường Lương Định Của và đường cao tốc Long Thành, kết nối giao thông thuận tiện với các vùng.
Cho Thuê Nhà Đường Vũ Tông Phan An Phú
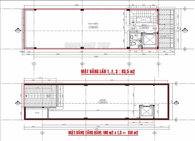
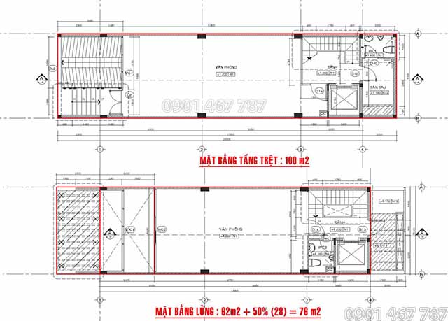
Nhà có DT đất 100m2 (5x20m). Kết cấu xây dựng 1 trệt, 3 lầu, ban công, sân thượng. Sàn trống suốt. Tiện làm văn phòng công ty, lớp học... (Ms: 2661)
Giá cho thuê: 50 triệu/tháng (LH: Click 0901 467 787 )
Mặt tiền đường trước nhà rộng 18m, khu vự dân cư đẳng cấp tập trung đông khối văn phòng, khu kinh doanh sầm uất. Cơ sở hạ tầng hoàn thiện, liền kề trung tâm tài chính mới Thủ Thiêm. Di chuyển vào trung tâm thuận tiện chỉ mất khoảng 5 - 10 phút lái xe.
Tiện ích khu vực hoàn hảo: Gần tòa nhà chi cục thuế TP. HCM, gần trường tiểu học Nguyễn Hiền, Trường cấp 2 Võ Trường Toàn, Trường cấp 3 Thủ Thiêm. Siêu thị, trung tâm thương mại, bệnh viện, trạm y tế...
Cho thuê tòa nhà văn phòng phường An Phú Quận 2 diện tích 5 x 20m. Kết cấu xây dựng theo tòa nhà văn phòng để thông suốt, gồm 1 hầm, 1 trệt, 1 lửng, 3 tầng lầu, tòa nhà bọc kính rất đẹp. Có thang máy tốc độ cao, thang bộ, hệ thống đèn chiếu sáng, hệ thống điều hòa trung tâm
Quy mô tòa nhà có diện tích sử dụng 450m2 "không tính tầng hầm". Tòa nhà thể sắp sếp bố trí được 150 - 200 nhân viên làm việc.
Tòa Nhà Văn Phòng 2 Mặt Tiền Đường P. An Phú
Diện tích đất: 300m2 (20x15m). Thiết kế xây dựng Hầm, 4 tầng, sân thượng, có vỉa hè rộng
Diện tích sàn 1481m2, có điều hoà, thang máy, thang bộ, thang thoát hiểm, phòng cháy chữa cháy
Cho thuê toà nhà văn phòng ký hợp đồng lâu dài cọc 3 tháng, thanh toán 1 tháng
Giá cho thuê: 300 triệu/tháng
Cho thuê nhà đường số 12 An Phú
Diện tích đất 100m2 (5x20m)
Xây dựng 1 hầm, 4 lầu, thang máy
Nội thất cao cấp
Giá cho thuê 70 triệu/ tháng (thương lượng)
Hình ảnh thực tế:
Giá: 70 triệu/ tháng kidzone
Liên hệ Mr Tùng: Click 0901 467 787
Chuyên nhận ký gửi mua bán - cho thuê nhà đất quận 2





Xem thêm