Mở bán căn hộ tòa The Park 5 Vinhomes Central Park
Sale hotline 0912178139

Căn hộ tòa Park 5 có các điểm nổi bật sau:
1. Vị trí The Park 5: Gần công viên bờ sông không gian thoáng mát, trong lành.
2. 100% căn hộ The Park 5 đều có view sông Sài Gòn và công viên xanh mát.
3. Mật độ căn hộ The Park 5 rất thấp, chỉ 8 căn/ tầng, từ 1-3 phòng ngủ
4. Ban công The Park 5 rộng, kéo dài từ phòng khách qua phòng ngủ, tận dụng tối đa tầm nhìn.
5. Các căn hộ The Park 5 đều được sử dụng kính Low-e (ngăn chặn 90% tia cực tím).
6. Tòa nhà The Park 5 cao 47 tầng thiết kế bề ngoài kiểu dáng cao cấp hiện đại.
7. Diện tích căn hộ The Park 5
7.1. Căn hộ 1 phòng ngủ: Duy nhất 1 căn ở tầng 23 diện tích 56.7m2
7.2. Căn hộ 2 phòng ngủ: 76-79-86-88m2
7.3. Căn hộ 3 phòng ngủ: 112-113-140m2
7.4. Căn hộ nhà phố thương mại thông tầng (Duplex shophouse)
7.5. Căn hộ sân vườn thông tầng (Duplex gardenhouse)
7.6. Căn hộ Penthouse trên tầng thượng
8. The Park 5 đi lại thuận tiện với 7 thang máy tốc độ cao
9. The Park 5 có 2 thang thoát hiểm với cửa chống cháy
10. Hầm để xe The Park 5 thông minh với 3 tầng
11. Thời gian khởi công The Park 5 năm 2015
12. Thời gian hoàn thành The Park 5 dự kiến 2017
Giá bán căn hộ The Park 5: Mở bán đợt đầu với chính sách ưu đãi từ 3,97 tỷ - 9,68 tỷ/ căn
Liên hệ 0912167139 Mr Điền
Tìm hiểu: TIỆN ÍCH TẠI VINHOMES CENTRAL PARK
Mặt bằng căn hộ The Park 5 - Vinhomes Central Park

Vị trí The Park 5

Mặt bằng căn hộ tầng điển hình (8 căn hộ và 7 thang máy/ tầng)

Riêng tầng 23 có 7 căn hộ/ tầng

Căn hộ số 1 loại 2 phòng ngủ view Tây Bắc, Sông Sài Gòn và công viên 14ha

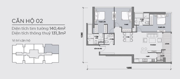
Căn hộ số 2 căn góc 3 phòng ngủ view trực diện sông và công viên 14ha

Căn hộ số 3 căn góc 3 phòng ngủ view trực diện sông, công viên 14ha

Căn hộ số 4 - 2 phòng ngủ view Đông Nam, Sông Sài Gòn và công viên 14ha

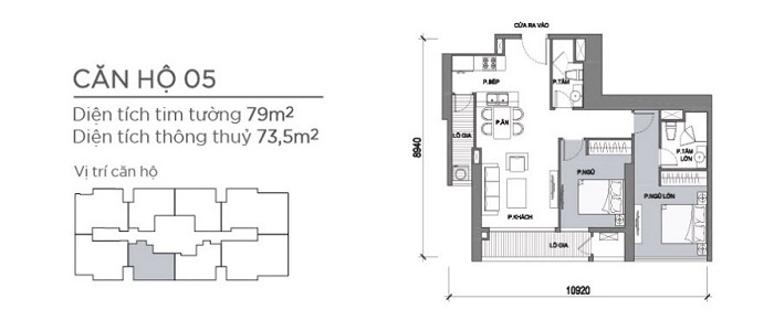
Căn hộ số 5 - 2 phòng ngủ view Đông Nam, Sông Sài Gòn và công viên 14ha

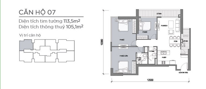
Căn hộ số 7 loại 2 phòng ngủ view Tây Bắc, Sông Sài Gòn và công viên 14ha

Căn hộ số 8 loại 2 phòng ngủ view Tây Bắc, Sông Sài Gòn và công viên 14ha

Quang cảnh công viên Vinhomes Central Park 14ha
Hotline: 0912167139 Mr Điền
Giới thiệu: BIỆT THỰ VINHOMES CENTRAL PARK
Xem thêm