Bán Nhà Phố Vinhomes Grand Park
Ngôi nhà - nơi ta tìm về chốn yêu thương tổ ấm cho ta sự bình yên thư thái sau mỗi ngày bận dộn lo toan. Sở hữu ngôi nhà trong đại đô thị Vinhomes Grand Park, sẽ mang lại cho cư dân cuộc sống yên bình ngập tràn hạnh phúc một khu đô thị đẳng cấp Singapore và hôn thế nữa. Sở hữu căn nhà tại Vinhomes mang lại giá trị tinh thần cũng như đẳng cấp của mỗi khách hàng.
Thông Tin Khu Đô Thị Vinhomes Grand Park
- Chủ đầu tư: Tập đoàn Vingroup
- Những dự án đã được Vingroup triển khai rất thành côn: Hệ thống Vincom, Vinhomes Golden River, Vinhomes Central Park, Royal City,Vinpearl, Times City, khu biệt thự Vinhomes Riverside,...
Tên dự án chính thức: "Vinhomes Grand Park"
Vị trí dự án Vinhomes:
Dự án có vị trí vàng 2 mặt tiền đường Nguyễn Xiển và Phước Thiện, phường Long Bình, Quận 9.
Quy mô dự án:
- Tổng diện tích: 275ha
- Mật độ xây dựng: 20%
- Loại hình phát triển: căn hộ, nhà phố, biệt thự, shophouse
- Có 71 tòa căn hộ
- Chiều cao tầng: 26-35 tầng
- Khởi công năm 2018
- Dự kiến bàn giao: quý II - 2020
- Dự kiến hoàn thành khu năm 2022
Mặt bằng dự án Vinhomes Grand Park
- Khu The Rainbow 17 tòa.
- Khu The Hospitality 21 tòa.
- Khu The Middle 19 tòa.
- Khu The Ocean 14 tòa.
- Khu Nhà Phố
- Khu Biệt Thự

Diện tích điển hình từ 75m2 - 125m2
Thiết kế xây dựng 1 trệt, 2 lầu
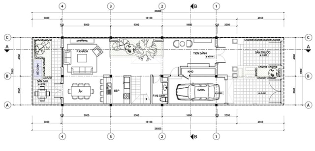
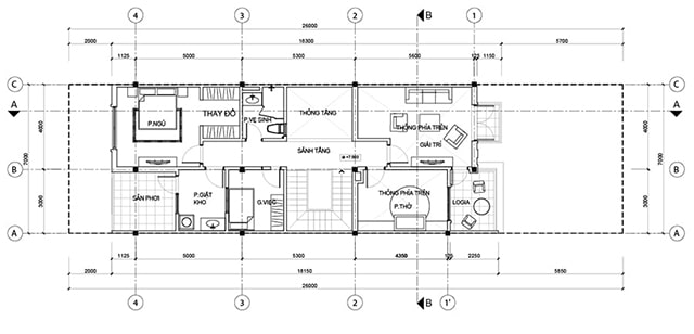
Mặt bằng khu nhà phố Vinhomes Grand Park
Mặt bằng thiết kế nhà phố Vinhomes Grand Park
Mặt bằng tầng trệt
Mặt bằng lầu 1
Mặt bằng lầu 2
Tiện Ích Dự Án Vinhomes
Công viên ven sông Grand Forest rộng 36ha (điểm nhấn - công viên ánh sáng Garden By Bay) thiết kế côn viên cảnh quan EDSA (Mỹ). với hơn 50.
- Khu vườn cây ánh sáng “Garden by the Bay”
- Đảo dưỡng sinh.
- Hồ bơi, thác nước,…
- Quảng trường trong công viên.
- Công viên thể thao.
- Bãi cỏ, vườn hoa, ghế nghỉ.
- 49 sân tập thể thao ngay trong nội khu đô thị.
- Khu vui chơi ngoài trời dành cho trẻ em khám phá thiên nhiên được phân bố đều ở các tiểu khu.
- Công viên BBQ.
- Bệnh viện, Trường học liên cấp Vinshool
- Hệ thống siêu thị, Trung tâm thương mại Vincom, Shophouse….
Chính Sách Bán Hàng
Đối với khách hàng mua nhà phố Vinhomes Grand Park ngân hàng hỗ trợ vay vốn 70% (bao gốm VAT), thời hạn tối đa 35 năm.
Liên hệ PKD Đại Lý F1
Hotline: 0901 467 787
Bán Nhà Phố The Manhattan Vinhomes Grand Park (Shophouse)
Diện tích: 84m2 (7x12m), xây dựng 1 trệt, 4 lầu, bàn giao hoàn thiện ngoại thất, nội thất giao thô.
Giá bán: 14,1 tỷ
Bán Nhà Phố Shophouse Manhattan Vinhomes Grand Park
Diện tích: 126m2 (7x18m), xây dựng 1 trệt, 4 lầu. Bàn giao hoàn thiện ngoại thất, nội thất giao thô.
Giá bán: 21,5 tỷ
Bán Nhà Phố Shop Villas Vinhomes Grand Park Quận 9
Diện tích: 260m2 (12x21,6m), xây dựng 1 trệt, 2 lầu, áp mái. Bàn giao hoàn thiện ngoại thất, nội thất giao thô.
Giá bán: 39 tỷ
Bán Biệt Thự Vinhomes Grand Park Quận 9
Diện tích: 461m2 (20x21,6m), xây dựng 1 trệt, 2 lầu, áp mái. Bàn giao hoàn thiện ngoại thất, nội thất giao thô.
Giá bán: 70,7 tỷ
Liên hệ PKD Đại Lý F1










Xem thêm