Mơ ước sở hưu ngôi nhà nơi thành phố, để an cư lạc nghiệp hiện giờ không còn khó đối với mỗi người dân lao động xa quê. Chủ đầu tư tập đoàn VinGroup đã phát triển dự án Vinhomes Grand Park quận 9, với nhiều chính sách ưu đãi hỗ trợ khách hàng để sở hữu được căn hộ trong mơ.
Thông Tin Khu Rainbow Vinhomes Grand Park
- Khu Rainbow Vinhomes Grand Park quận 9: Gồm 17 tòa căn hộ
- Số tầng từ: 26 - 35 tầng
- Căn hộ có diện tích: 33 - 81m2 (1 đến 3 phòng ngủ)
- Liền kề là trường liên cấp I, II, III
- Bàn rao: dự kiến quý II/2020
Vị Trí Khu Rainbow
- Phía đông giáp đường Vành đai 3, phía tây giáp đường Nguyễn Xiển, phía nam và phía bắc giáp đường nội khu.
Mặt Bằng Khu Rainbow
Mặt Bằng Tòa Căn Hộ Khu Rainbow The Light Vinhomes Grand Park
Dự án Vinhomes Grand Park có 3 mẫu mặt bằng tòa đển hình:
Mặt bằng căn hộ hình chữ Z, có 4 thang máy, 2 thang bộ. Có 19 căn hộ/sàn.
Mặt bằng căn hộ hình chữ T, có 6 thang máy, 2 thang bộ. Có 21 căn hộ/sàn.
Mặt bằng căn hộ hình chữ U, có 8 thang máy, 2 thang bộ. Có 30 căn hộ/sàn.
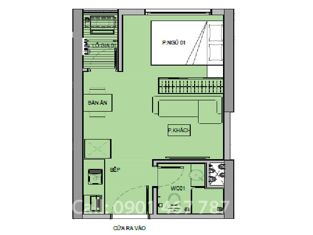
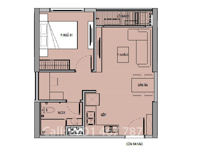
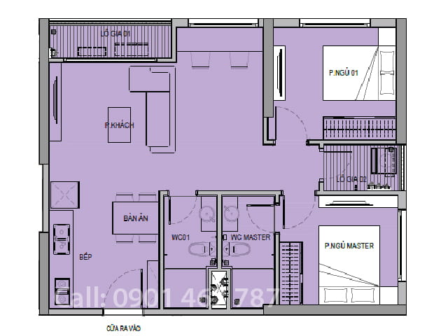
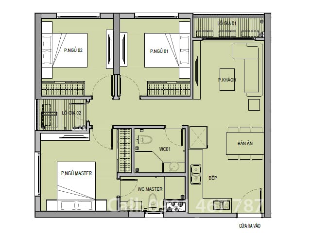
Mẫu Mặt Bằng Căn Hộ Điển Hình
Căn hộ Studio
Căn hộ 1 phòng ngủ
Căn hộ 2 phòng ngủ - 1WC
Căn hộ 2 phòng ngủ - 2WC
Căn hộ 3 phòng ngủ
Tiện ích Khu Rainbow
Khu Rainbow Vinhomes Grand Park sở hữu đầy đủ tiện ích hoàn hảo, với nhiều khoảng xanh dành cho công viên.
- Trường học liên cấp mầm non, cấp I, II, III.
- Công viên thể thao
- Khu vui chơi trẻ em ngoài trời
- Công viên BBQ
- Trung tâm thương mại
- Sân bóng đá
- Hồ bơi
- Sân bóng rổ, sân cầu lông..
Tạo nên một môi trường sống chất lượng, đẳng cấp trong một khu đô thị hiện đại bậc nhất "đẳng cấp Singapore và hơn thế nữa"
Chính Sách Ưu Đãi
Chỉ từ 200 triệu đồng khách hàng đã có thể sở hữu cho riêng mình 1 căn hộ cao cấp Vinhomes Quận 9. Ngân hàng hỗ trợ vay vốn linh hoạt, nhanh chóng, ngân hàng Techcombank cho vay tới 70%, lãi suất 0%... The Light Vinhomes Grand Park
Liên Hệ Phòng Kinh Doanh
Hotline: 0901467787














Xem thêm