Khu Middle Vinhomes Grand Park quận 9. Có vị trí trung tâm The Central được ví như "trái tim" của dự án, nơi hội tụ đầy đủ các tiện nghi nhằm phục vụ chất lượng sống của cư dân.
Dự án Vinhomes Grand Park nơi an cư lý tưởng của mỗi người dân sống ở thành phố. Một dự án mang lại cho cộng đồng dân cư sự hài lòng tốt nhất, chất lượng sống cao nhất. Ngay cả những khách hàng có dòng tiền hạn chế - Chủ đầu tư đưa ra những chính sách vô cùng ưu đãi, để bạn có thể sở hữu căn hộ cho riêng mình.
Thông Tin Khu Middle Vinhomes Grand Park
- Khu The Middle gồm 19 tòa căn hộ
- Chiều cao: 25 - 34 tầng
- Loại căn hộ: từ 1 - 3 phòng ngủ
- Diện tích: 33 - 81m2
- Bàn giao: dự kiến quý VI năm 2020
Vị Trí Khu Middle
The Middle có vị trí trung tâm dự án có 4 mặt tiền đường: đường Vành Đai 3, Phước Thiện và đường nội khu.
Mặt Bằng Khu The Middle
Mặt Bằng Tòa Căn Hộ
Mặt bằng tòa căn hộ hình chữ U: có 30 căn/sàn, 2 thang bộ và 8 thang máy
Mặt bằng căn hộ hình chữ Z: có 19 căn/sàn, 2 thang bộ và 4 thang máy.
Mặt bằng căn hộ chữ T: có 21 căn/sàn, 2 thang bộ và 6 thang máy khu The Central Vinhomes Grand Park
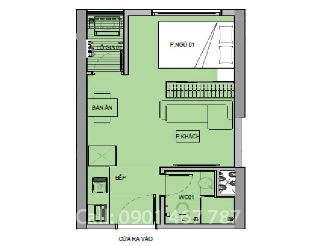
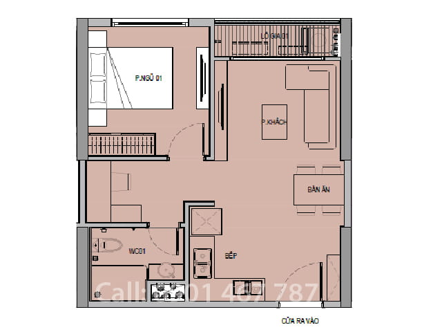
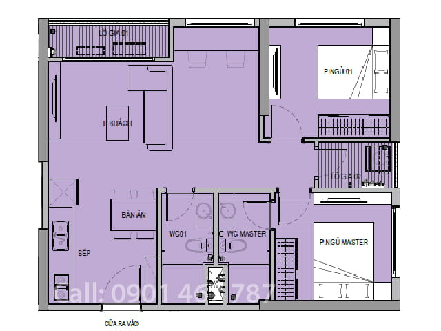
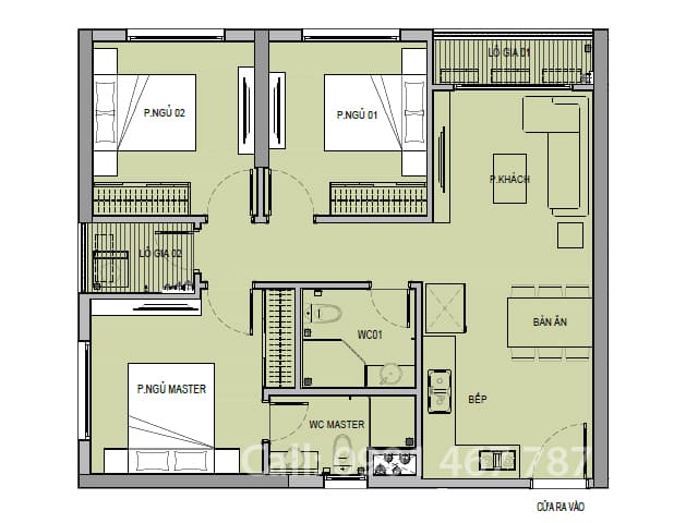
Mặt Bằng Căn Hộ Mẫu Điển Hình
Mẫu căn Studio
Mẫu căn 1 phòng ngủ
Mẫu căn 2 phòng ngủ
Mẫu căn 2 phòng ngủ - 2WC
Mẫu căn 3 phòng ngủ
Tiện Ích Khu Middle
- Công viên ven sông rộng 36ha, vườn cây ánh sáng, đảo dưỡng sinh
- Công viên thể dục thể thao, sân bóng đá, sân tennis,..
- Hồ bơi resort người lớn và trẻ em
- Trường học liên cấp: mầm non, tiểu học, trung học và phổ thông
- Công viên BBQ
- Hệ thống nhà hàng, trung tâm mua sắm, shophouse...
Ưu Đãi Từ Chủ Đầu Tư
- Hỗ trợ vay ngân hàng Techcombank lên tới 70%
- Thời hạn vay lâu dài lên tới 35 năm
- Hỗ trợ lãi suất 0% tới khi nhận nhà
- Ân hạn nợ gốc 12 tháng khu The Central Vinhomes Grand Park
Liên hệ PKD Đại Lý F1
Hotline: 0901 467 787













Xem thêm