Bạn còn độc thân hay đã lập gia đình? Và bạn đang mong muốn tìm nơi để xây dụng tổ ấm, bạn xây dụng mục tiêu sở hữu một căn hộ trong dự án cao cấp hiện đại. Chủ đầu tư Vingroup đã phát triển dự cán căn hộ đại trúng nhằm đáp ứng nhu cầu về nhà ở cho mọi khách hàng.
Phân khu Hospitality Vinhomes Grand Park sẽ đáp ứng đầy đủ các yếu tố về chuẩn mực cho cuộc sống hiện đại. Khu The Resort Vinhomes Grand Park
Thông Tin Khu Hospitality Vinhomes Grand Park
- Khu Hospitality có: 21 tòa
- Tòa căn hộ điển hình có cấu trúc hình chữ: U, T, Z.
- Chiều cao tòa căn hộ: 25 - 35 tầng,
- Gồm những loại căn hộ: từ 1 đến 3 phòng ngủ
- Diện tích: 33 - 81m2.
- Bàn rao: dự kiến quý II năm 2020.
Vị Trí Khu The Hospitality
Khu Hospitality có vị trí tiếp giáp với 4 mặt tiền đường, hướng đông giáp với đường vành đai 3. Phía bắc, phía nam và phía tây giáp với đường nội khu.
Mặt Bằng Khu The Hospitality
Mặt Bằng Tòa Căn Hộ
Mặt bằng căn hộ hình chữ T có 21 căn/ sàn, 6 thang máy và 2 thang bộ
Mặt bằng căn hộ hình chữ U. Có 30 căn hộ/sàn, 8 thang máy và 2 thang bộ. Khu The Resort Vinhomes Grand Park
Mặt bằng căn hộ hình chữ Z. Có 19 căn hộ/sàn, 4 thang máy và 2 thang bộ
Mặt Bằng Căn Hộ Mẫu
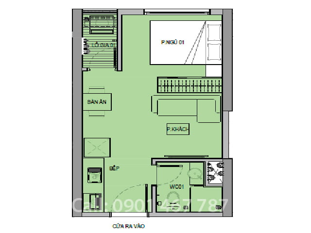
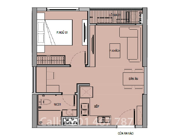
Căn Studio
Căn 1 PN
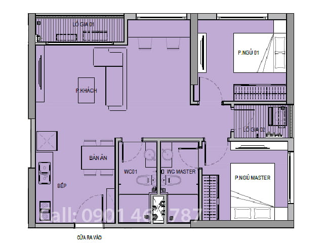
Căn 2 PN
Căn 2 PN + 1
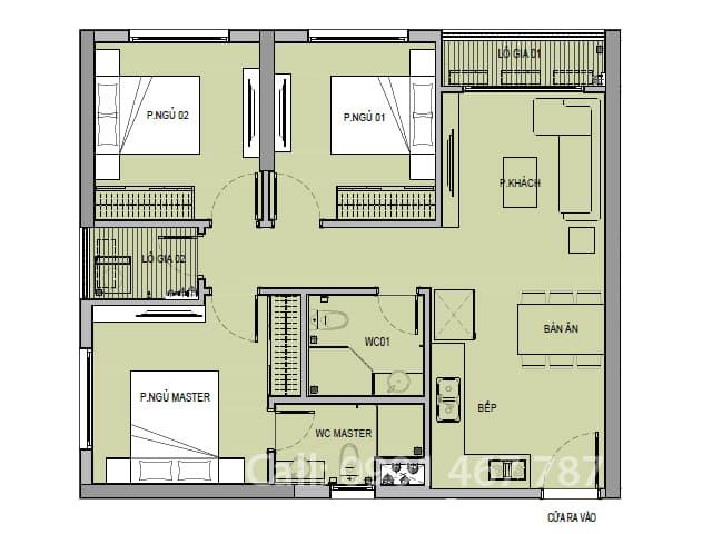
Căn 3 PN
Tiện Ích Khu Hospitality
Điểm nhấn là công viên rộng 36ha với vườn cây ánh sáng Garden By Bay (Singgarpore).
- Hồ bơi tràn bờ Resort người lớn và trẻ em.
- Hệ thống công viên thể thao: Sân bóng đá, tennis, sân cầu lông...
- Khu vui trơi trẻ em ngoài trời, khu khám phá thiên nhiên.
- Khu BBQ ngoài trời, Shophouse nhà hàng, cafe...
- Trung tâm chăm sóc sức khỏe, trường học liên cấp.
Ngân Hàng Hỗ Trợ Vay Vốn
Ngân hàng Techcombank bảo lãnh dự án. Techcombank hỗ trợ vay vố 70% giá trị căn hộ, hỗ trợ lãi suất 0%. Khách hàng chỉ cần từ 200 triệu đã có thể sở hữu nay căn hộ đẳng cấp Singapore.
Liên hệ PKD Đại Lý F1
Hotline: 0901 467 787













Xem thêm